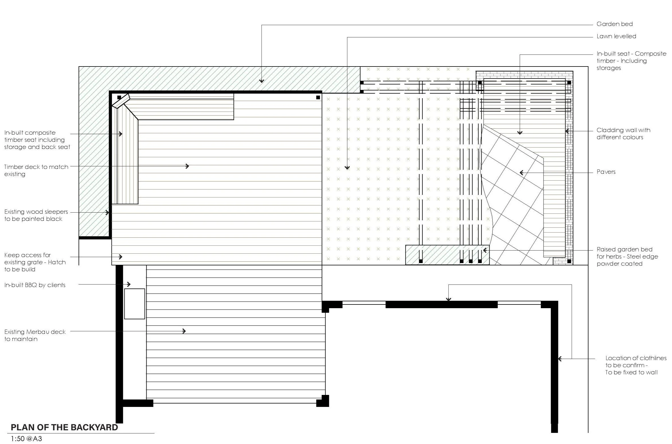
This project has been designed to optimise the backyard of a young family. My clients wanted to make this space level, to rejuvenate the existing seating area on the corner and to extend an existing deck while including new seating with storage where they could pack up all the childrens toys.

They also needed to integrate some playground space for the young children, which is the reason why we have a climbing spider net on the side but also a structure where we can fix a swing for the kids for now and later it could be replaced by a floating seating around a portative firepit. This backyard will evolve throughout the years with the family.

Location Woonona, 2516 NSW.

What we have….

What we designed!

Previous
Previous

Gahnia Ave, Figtree NSW

Next
Next

Gower Street, Calderwood NSW