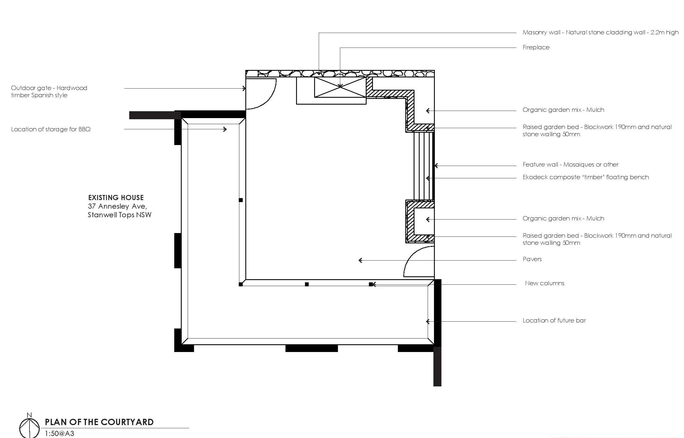
We were called to work on the design for a courtyard in the beautiful Stanwell Tops area!  The clients wanted to rejuvenate this entrance and make it more appealing and make it an extra living room! 

We replaced the existing wall with beautiful cladding stones, and replaced the existing fireplace which was damaged, added some raised garden beds around and an in-built seating with a Spanish touch tiled wall as a feature !

Stanwell Tops, NSW.

What we designed…

Previous
Previous

Charlotte Harrison Dr, Woonona

Next
Next

Hercules Street, Wollongong